JAVENE: RECTRUCTURATION DE L'ILOT DU COUESNON

JAVENE: RECTRUCTURATION DE L'iLOT DU COUESNON
JAVENE: RECTRUCTURATION DE L'iLOT DU COUESNON

ETUDE URBAINE: UN PROJET A LONG TERME

PROJET: Etude de restructuration et de valorisation urbaine d'un îlot de centre bourg à Javené

MAITRE D'OUVRAGE: Commune de Javené 35133

PARTENAIRES: DG Construction, ARES Concept, AE2I

 

JAVENE: RECTRUCTURATION DE L'iLOT DU COUESNON

Un projet où le détail architectural dialogue avec la vision urbaine pour recréer du lien, du sens et de la durabilité.

 

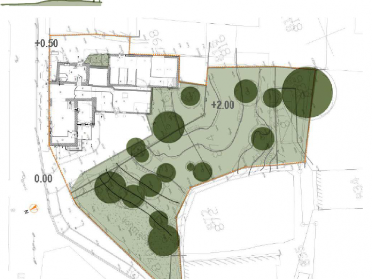
Contexte

Un îlot historique à revitaliser : pôle santé, boulangerie, logements et espaces partagés, en préservant l’identité du lieu. Trois scénarios pour concilier patrimoine, usages et environnement.

Notre Approche

En 3 points :

  • Précision : Travail à l’échelle du détail (matériaux, accessibilité).
  • Vision globale : Intégration urbaine, mixité sociale, gestion des flux.
  • Collaboration : Diagnostic participatif (186 réponses) et équipe pluridisciplinaire.

 

JAVENE: PROJET D’AMENAGEMENT D’UN ILOT DE CENTRE BOURG

Repenser le centre-bourg de Javené : quand le détail rencontre la vision urbaine

Chez Rocher Architecture, nous croyons que l’architecture se vit à toutes les échelles : de la poignée de porte au projet urbain. C’est cette philosophie que nous mettons en œuvre dans la restructuration de l’îlot du Couesnon à Javené, un projet où chaque détail compte pour recréer du lien, du sens et de la durabilité.

Un projet ancré dans son territoire Au cœur de Javené, cet îlot historique est une opportunité unique de : ? Valoriser le patrimoine (bâtiments en pierre, toitures en ardoise, mémoire des lieux) ? Repenser les usages (pôle santé, boulangerie, logements, espaces partagés) ? Créer de la mixité (sociale, fonctionnelle, générationnelle) ? Intégrer l’écologie (espaces verts, gestion des eaux pluviales, matériaux durables)

Notre approche ?

  • À l’échelle humaine : des espaces pensés pour les habitants, où chaque détail (lumière, circulation, matériaux) contribue au bien-être.
  • À l’échelle urbaine : un projet qui s’inscrit dans une réflexion globale sur la revitalisation des centres-bourgs, la sobriété foncière et la cohésion sociale.

Pourquoi ce projet nous inspire ? Parce qu’il prouve qu’on peut concilier préservation du passé et innovation, en transformant les contraintes (dénivelés, bâtiments existants, attentes des usagers) en atouts pour demain.

Un grand merci à nos partenaires (DG Construction, AE2I, Ares Concept) et à la commune de Javené pour cette aventure collective !

#ArchitectureEngagée #UrbanismeDurable #PatrimoineVivant #CentreBourg #Javené